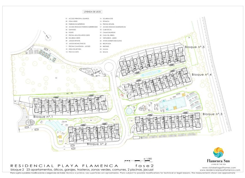
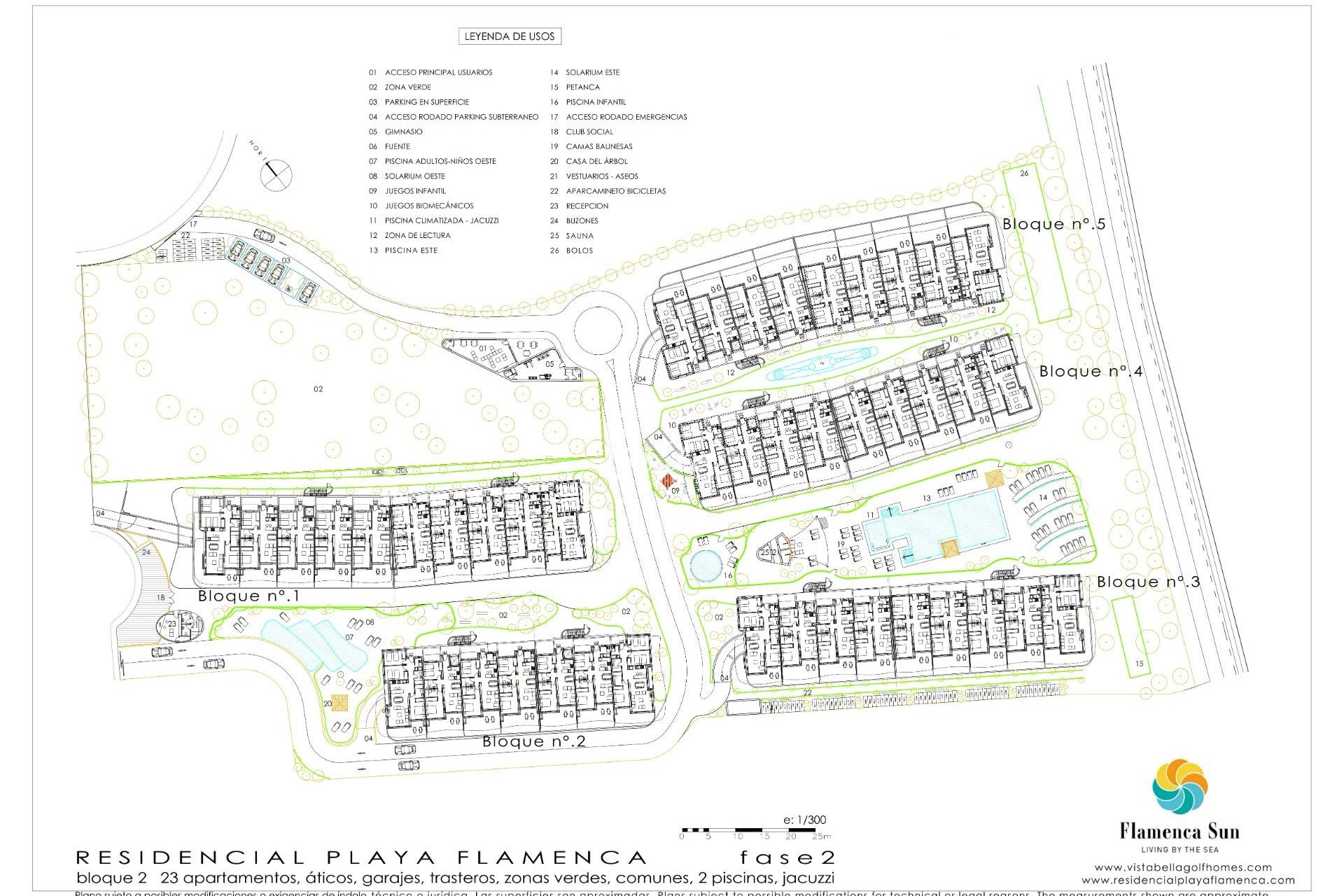
Откройте для себя эксклюзивный жилой комплекс новостройки в Playa Flamenca, Orihuela Costa, созданный для тех, кто ищет современное жильё в отличном месте с высоким потенциалом как для собственного проживания, так и для инвестиций на побережье Коста-Бланка. Проект реализуется поэтапно, что позволяет приобрести недвижимость на разных стадиях строительства с хорошими перспективами роста стоимости.~~В комплексе уже завершён и полностью распродан первый блок с функционирующим общим бассейном. Блок 2 находится на завершающей стадии отделки, блок 3 — на этапе возведения внутренних перегородок, а блок 4 — к которому относятся данные квартиры — находится на стадии фундамента и возведения конструкции. Это делает блок 4 особенно привлекательным вариантом для покупателей, желающих приобрести недвижимость по выгодной цене в активно развивающемся районе.~~Квартиры отличаются современным, функциональным и светлым дизайном, с просторными террасами, идеально подходящими для наслаждения средиземноморским климатом круглый год. Доступны варианты с 2 и 3 спальнями, продуманная планировка, открытые кухни с возможностью индивидуализации, а также качественные материалы: окна ПВХ с двойным остеклением, керамические полы и предустановка кондиционирования. В стоимость также входят парковочное место и кладовая.~~После завершения строительства комплекс будет включать несколько общих бассейнов, благоустроенные зелёные зоны и пространства для отдыха, всё это в закрытой и безопасной урбанизации.~~Одним из ключевых преимуществ является расположение — всего в 500 метрах от пляжа и в непосредственной близости ко всем необходимым услугам. Рядом находятся Mercadona и Centro Comercial La Zenia Boulevard, а также супермаркеты, рестораны, зоны отдыха, медицинские центры, школы и гольф-поля.~~В итоге — это отличная возможность приобрести недвижимость, сочетающую в себе удачное расположение, высокое качество строительства и инвестиционный потенциал.~~Не упустите возможность жить в привилегированной обстановке. Свяжитесь с нами сегодня для получения дополнительной информации и бронирования вашего визита!~~Цена: 489 000 €*. Налоги и расходы на покупку НЕ включены (в соответствии с действующим законодательством).~Подробная информация о дополнительных расходах будет предоставлена до бронирования.~*Цена может содержать опечатки; уточняйте у застройщика.