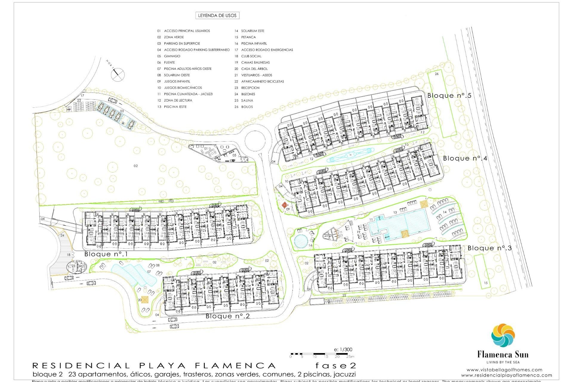
Descubre un exclusivo residencial de obra nueva en Playa Flamenca, Orihuela Costa, diseñado para quienes buscan una vivienda moderna, bien ubicada y con gran potencial tanto para disfrutar como para invertir en la Costa Blanca. Se trata de un proyecto en desarrollo compuesto por varios bloques, lo que permite acceder a viviendas de nueva construcción en distintas fases y con una excelente proyección de revalorización.~~El residencial cuenta ya con un primer bloque completamente terminado y vendido, con piscina comunitaria en funcionamiento, mientras que el bloque 2 se encuentra en fase final de acabados, el bloque 3 en ejecución de tabiquería y el bloque 4 —al que pertenecen estas viviendas— en fase de cimentación y levantamiento de estructura. Esta circunstancia convierte al bloque 4 en una oportunidad especialmente interesante para quienes buscan adquirir una propiedad a un precio competitivo dentro de un entorno en plena consolidación.~~Las viviendas han sido concebidas con un diseño actual, funcional y muy luminoso, con amplias terrazas que permiten disfrutar del clima mediterráneo durante todo el año. Disponibles en configuraciones de 2 y 3 dormitorios, ofrecen espacios bien distribuidos, cocinas abiertas listas para personalizar y calidades como carpintería exterior en PVC con Climalit, suelos de gres y preinstalación de aire acondicionado. Además, incluyen plaza de garaje y trastero, aportando comodidad y valor añadido.~~El residencial, una vez finalizado, dispondrá de varias piscinas comunitarias, amplias zonas ajardinadas y espacios pensados para el descanso y la vida al aire libre, todo ello dentro de una urbanización cuidada, privada y segura.~~Uno de sus grandes atractivos es la ubicación, a tan solo 500 metros de la playa y con acceso inmediato a todos los servicios necesarios para el día a día. Se encuentra muy próximo a Mercadona y al Centro Comercial La Zenia Boulevard, así como rodeado de supermercados, restaurantes, zonas de ocio, centros médicos, colegios y campos de golf, lo que lo convierte en un entorno ideal tanto para estancias vacacionales como para residir todo el año.~~En definitiva, una propuesta inmobiliaria que combina ubicación, calidad constructiva y proyección, ideal para quienes buscan una vivienda en la costa con todas las comodidades o una inversión con alta demanda en el mercado actual.~~Precio: 325.000€*. Impuestos y gastos de compraventa NO incluidos (según normativa aplicable).~Se informará del desglose de gastos adicionales antes de la reserva.~*El precio puede contener erratas de escritura, consultar con la promotora Especialistas en Orihuela Costa