375.000€
Продается квартира у моря в закрытом комплексе ¨Flamenca Village¨, Плая Фламенка, Ла Зения.
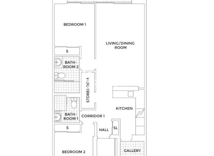
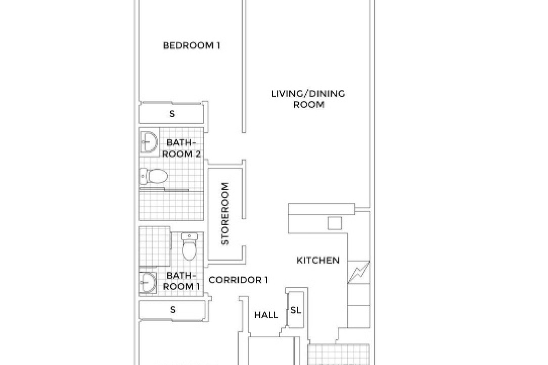
Строительство комплекса было завершено совсем недавно, осенью 2021 года. Апартаменты имеют: две просторные спальни, одна из которых имеет прямой выход на большую террасу площадью 19 кв. м, и две со вкусом оформленные ванные комнаты, оборудованные душевыми кабинами и подогревом пола.
Гостиная и кухня открытой планировки создают очень светлую и гостеприимную атмосферу. Кухня оборудована высококачественной техникой. Также есть отдельная кладовая с большим количеством места для чемоданов, сумок для гольфа и т. д. Рядом с кухней находится хозяйственный блок-прачечная, оборудованная водонагревателем и стиральной машиной.
Из гостиной, а также из главной спальни вы можете попасть на просторную солнечную террасу площадью 19 кв. м и прекрасный вид на подогреваемый бассейн. Здесь достаточно места как для обеденного стола ,так и места для отдыха.
За квартирой закреплено паровозное место в подземном гараже. В гараже у вас также есть доступ к большой кладовке для хранения велосипедов.
Квартира продается полностью меблированной высококачественной мебелью, как новая.
Flamenca Village — это закрытый жилой комплекс, который предлагает большую территорию для жителей комплекса, которые обычно можно найти в лучших гостиничных курортах. Есть четыре больших бассейна, два из которых подогреваются зимой. В каждом бассейне также есть детский бассейн и два подогреваемых джакузи. Есть хорошая игровая площадка для малышей и хорошо оборудованный крытый спортзал с раздевалками, душевыми и сауной. В центральной зоне бассейна есть хороший бар для отдыха, где вы можете заказать закуски и напитки.
Flamenca Village расположен в самом центре Плайя-Фламенка. Он находится всего в нескольких минутах ходьбы от двух фантастических пляжей, супермаркета, пекарни, аптеки и ресторанов. Кроме того, он находится всего в пяти минутах ходьбы от популярного субботнего рынка и знаменитого торгового центра Zenia Boulevard.